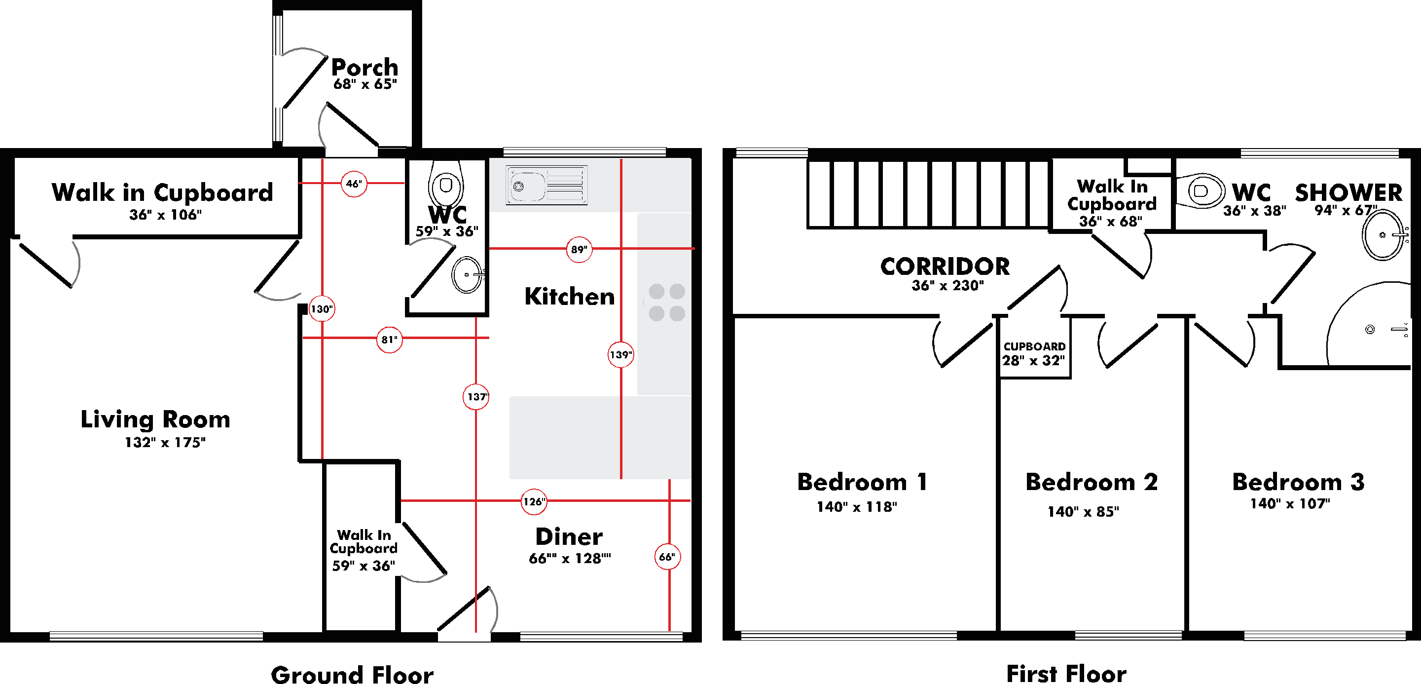
3 Bed Terraced House, 13 Fourstones, NE5

Hover over to halt slide. Click to enlarge picture

                  Please Contact Us For Further Details

Name *
Email *
Message *
Empty

Max file size (Mb): 2

Max number of files: 1